
I'm a Modal
Hear me roar.
Agendar Visita
Receba Notificações em seu E-mail com imóveis Semelhantes a este.
Galeria de imagens
Valor deVenda
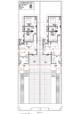
Descrição › Casa com 2 Dormitórios localizada no bairro São Bento.
Churrasqueira, vaga para 2 carros, pátio nos fundos com mais de 27m².
Início das obras em Janeiro de 2026 e previsão de entrega para Dezembro de 2026.
Financiamento pela Minha Casa Minha Vida.
Entre em contato conosco e faça uma simulação sem compromisso!
Cód. do Imóvel › LVED1366
Finalidade › Venda
Tipo › Casas
Posição Solar › Leste
Mobiliado › Não
Qtd. banheiro › 1
Dormitórios › 2
Qtd. Vagas Estac. › 2
Área de Serviço(s) › 1
Área Total › 188,10m²
Área Privativa › 52,80m²
Área Frente › 6,27m²
Área Fundos › 6,27m²
Área L. Esquerdo › 30,00m²
Área L. Direito › 30,00m²
Características do imóvel
Esquadrias em Alumínio
Piso Porcelanato
Pátio
Jantar e Estar Integrados
Garagem Aberta
Cozinha
Churrasqueira
Banheiro Social
Área Serviço
Contato da imobiliária
Líder Imóveis
Vendas › (51) 99213.1360 WhatsApp › (51) 99213.1360 Locação › (51) 99546.3312 WhatsApp › (51) 99546.3312 E-mail › [email protected]Imóveis relacionados


Universitário
Universitário Lajeado
2 Dorm.
Tot. 384,00m² Priv. 48,30m²
Venda
R$ 330.000,00

Conventos
Conventos Lajeado
3 Dorm.
Priv. 78,00m²
Venda
IMPORTANTE: As informações exibidas nesta página fazem parte de um anúncio publicitário, e podem ser alteradas, inclusive quanto ao valor, sem aviso prévio.
IMPORTANTE: Por favor, entre em contato conosco para obter informações mais detalhadas.